170 ERIE STREET

The “Inside/Out” Building is a nine-story, 162,000 square foot mixed-use building offering a contemporary and sensitive addition to Jersey City’s historic Hamilton Park neighborhood.  The innovative design engages this community in two ways:  it offers a modern reinterpretation of the neighborhood’s historic architecture and overlaps commercial with residential uses to integrate local businesses with green urban living. 

Hamilton Park is known for its historic residential square and brick townhouses, schools, and houses of worship.  This neighborhood is constructed almost entirely of brick, exhibiting a remarkable range of color, texture, and street-facing stoop gardens.  The site was previously a concrete parking garage, at the edge of the neighborhood between the Holland Tunnel and Hamilton Park, that turned its back on the community.

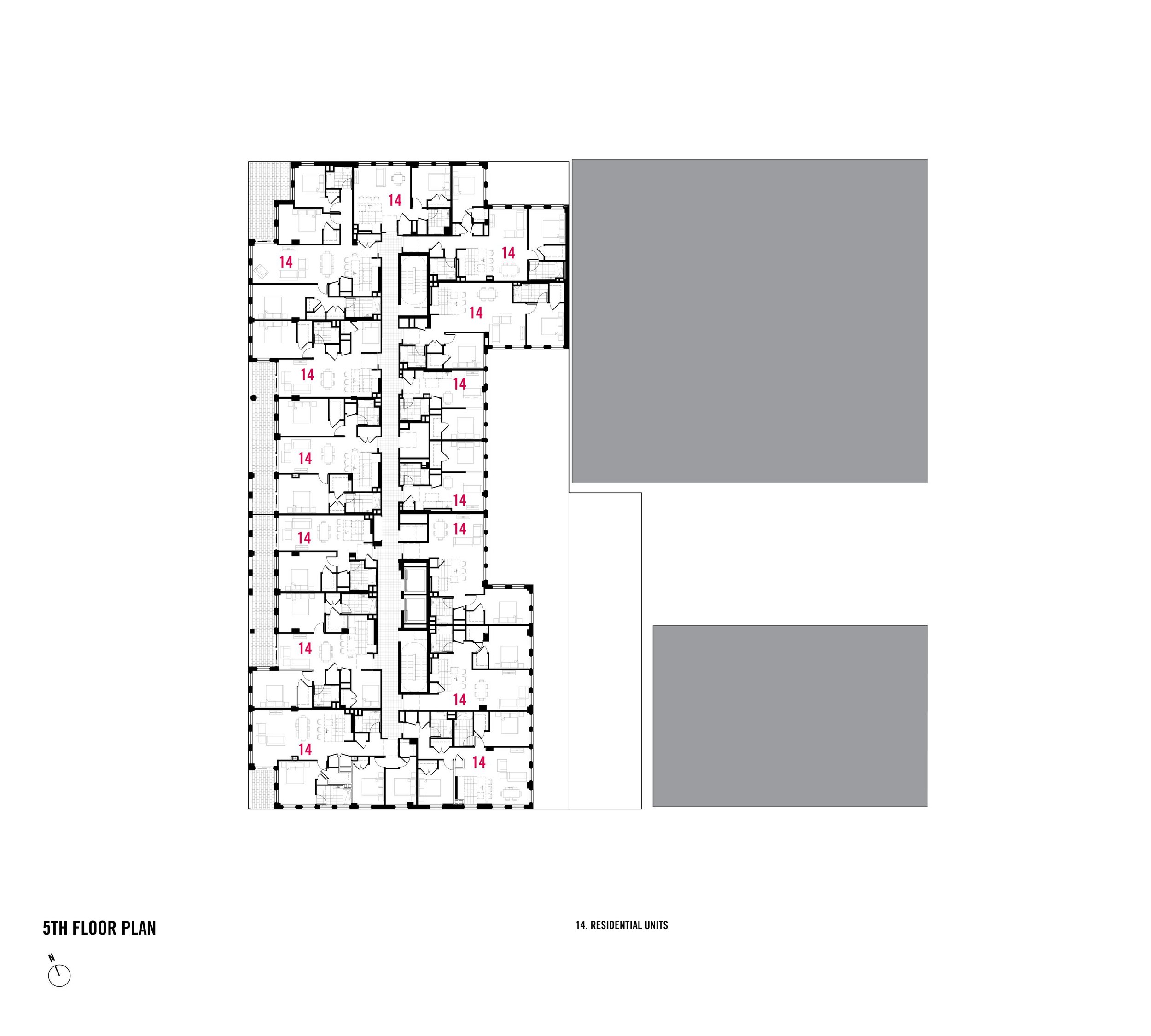
Our design restores this fragmented edge and reinterprets the neighborhood’s historic character through a contemporary language of brick architecture.  The residential upper floors are defined by a double-layer brick façade, turning the building “inside-out” to create residential terraces, gardens, and amenities. The uplifted commercial base re-engages the street while flexible fenestration supports a variety of small businesses.  The building establishes a live/work community that reinforces the human-scale of Hamilton Park.

Asymmetrical perforated facades reflect the diverse programs and residences within.  Interlocking exterior and interior forms reduce the building’s scale.  Brick detailing and sawtooth textures create patterns of light and shadow. Porches and loggias reinterpret traditional architecture, low garden walls rhyme with adjacent townhomes, and residential terraces lift street-facing stoop gardens into the sky.

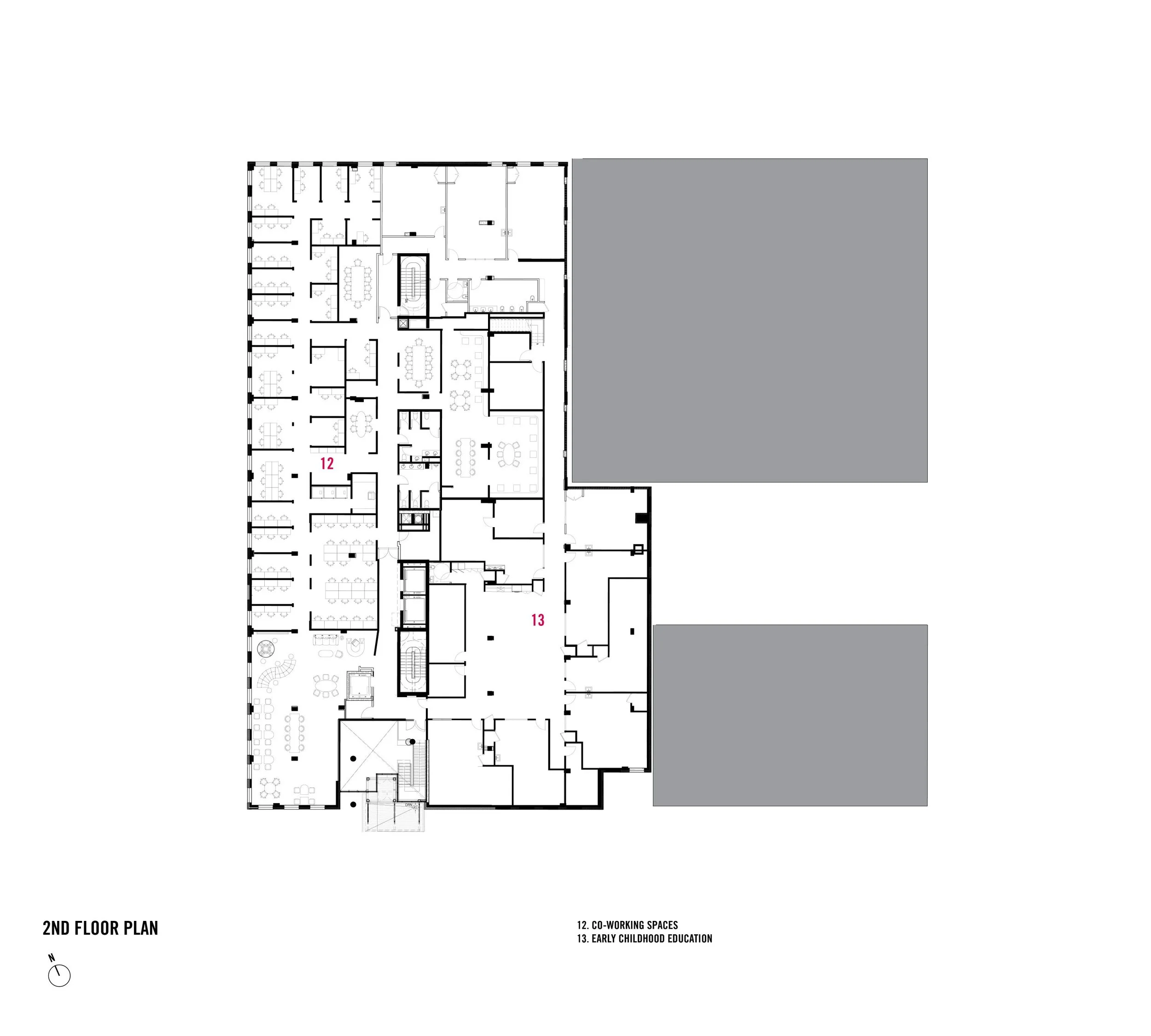
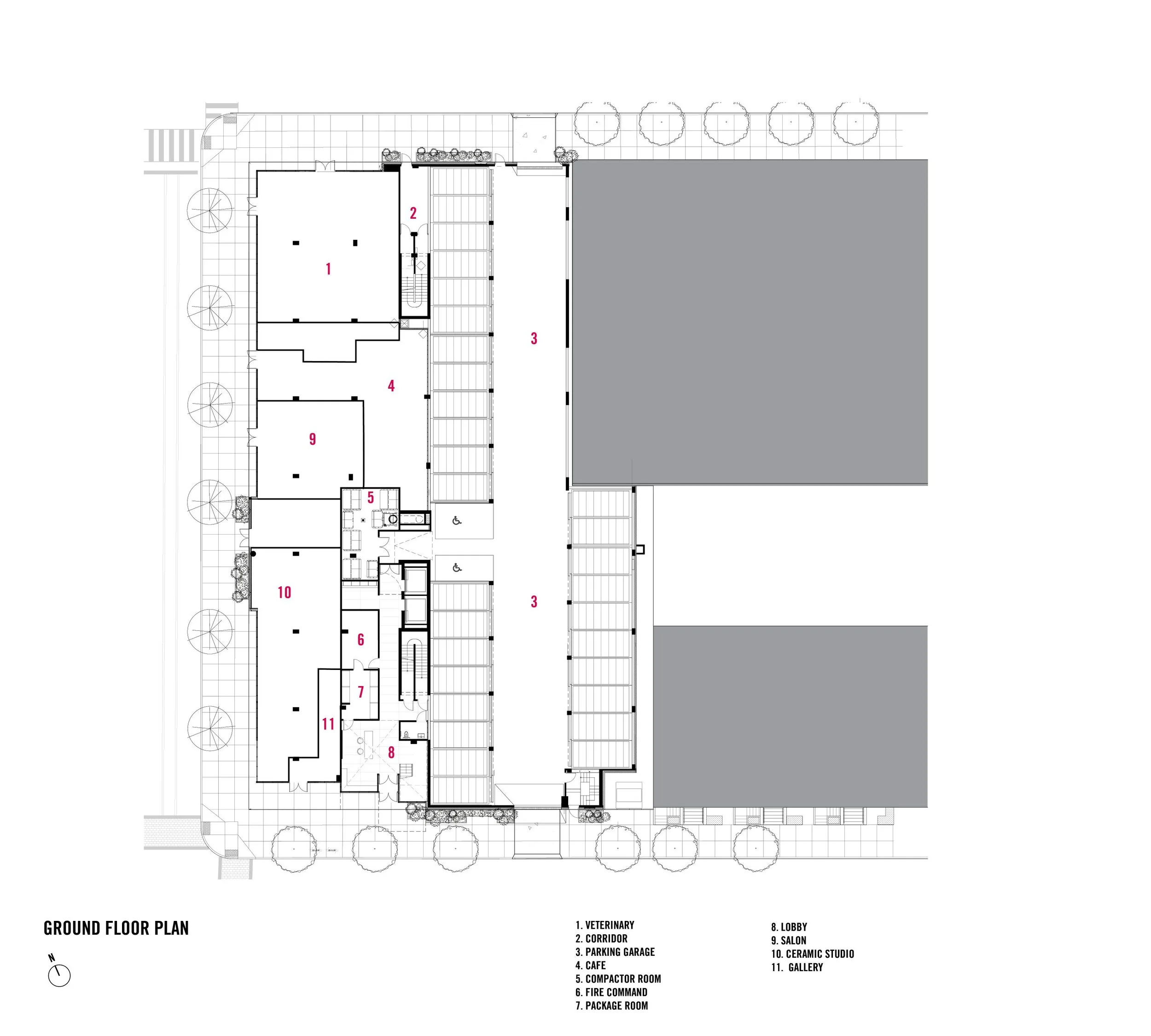
Embracing Jane Jacobs’ principles, the project combines residential, commercial, and community spaces, so common in traditional neighborhoods but rare in multi-family buildings.  The circulation and planning support a surprising range of local businesses and startups.  These currently include a children’s school, co-working spaces, ceramic studio, café, engineering practice, veterinary clinic, therapy center, and art gallery.  The vertical stacking of retail, commercial, and residential culminates in rooftop gardens and amenities shared by businesses and residents, overlooking the Park and Manhattan skyline.

Even the original garage is reinvented:  integrating one of the first semi-automated parking facilities in the tri-state area featuring interior robotic systems allows residents to park without valets, preserves floor area, and maintains the pedestrian-friendly environment.

By integrating contemporary forms, gardens, and a sense of place, we create a dynamic environment where architecture, nature, and community converge, honoring the neighborhood’s historic character, while redefining mixed-use urban living. 

Jersey City, NJ

162,000 SF

2017 - 2023

Silverman

Complete

Residential, Office, Medical, School, Retail

LOCATION

SIZE

YEARS

CLIENT

STATUS

PROGRAM

Return to Projects