247 NORTH AVE

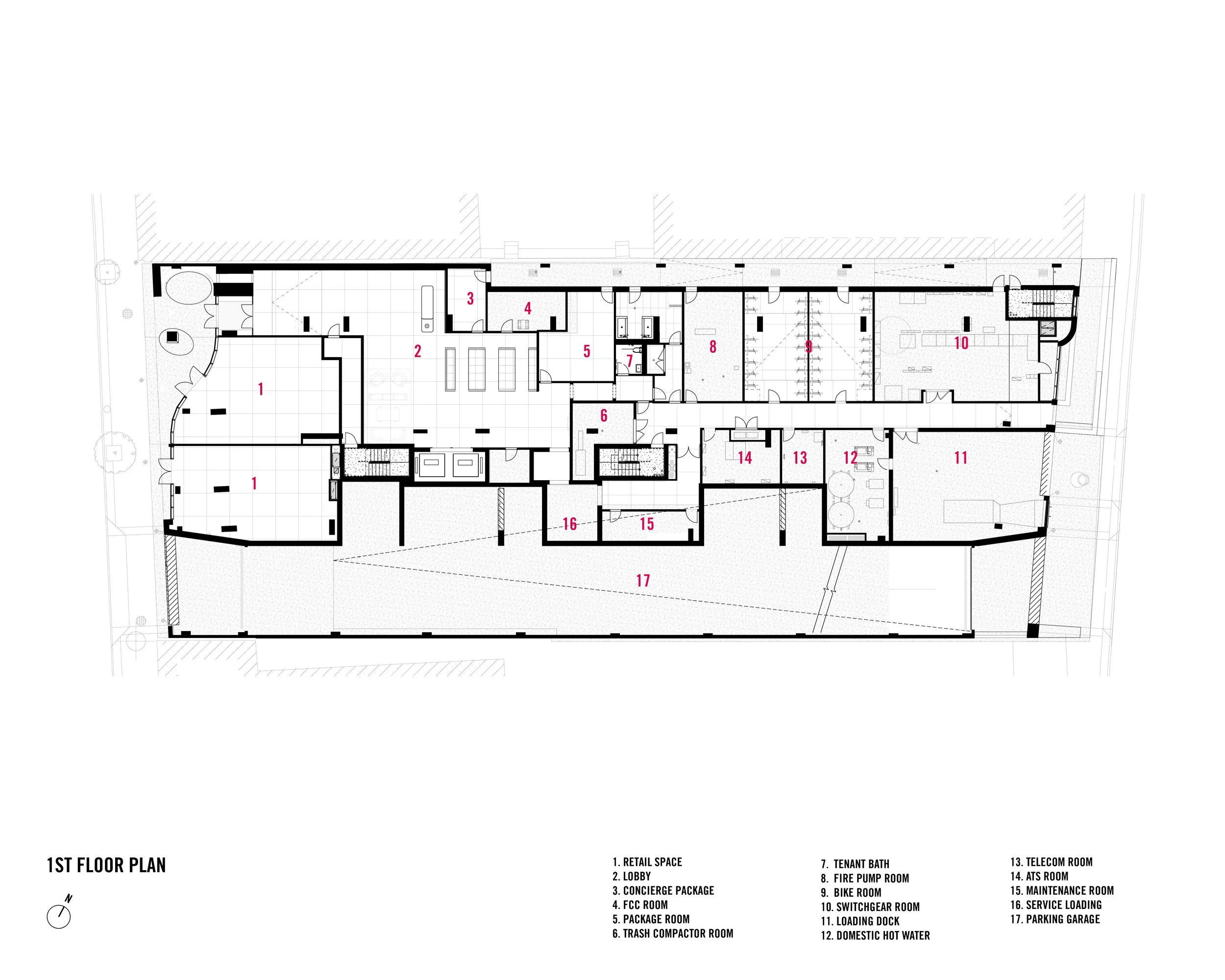
Inspired by the city’s rich architectural heritage and historic Huguenot traditions, this 28-story building is redefining downtown living in New Rochelle. Dramatic masonry arches and curved forms present a bold, contemporary massing and gateway visible from the train station. Striking angled concrete columns reconcile conflicting structural requirements, providing the most efficient solution while enlivening interior and exterior public spaces. Positioned within the city’s transit-oriented district, the first all-geothermal tower in Westchester blends sustainability, connectivity, and vibrant community-focused design.

New Rochelle, NY

380,000 SF

2022 - 2025

LCOR

Complete

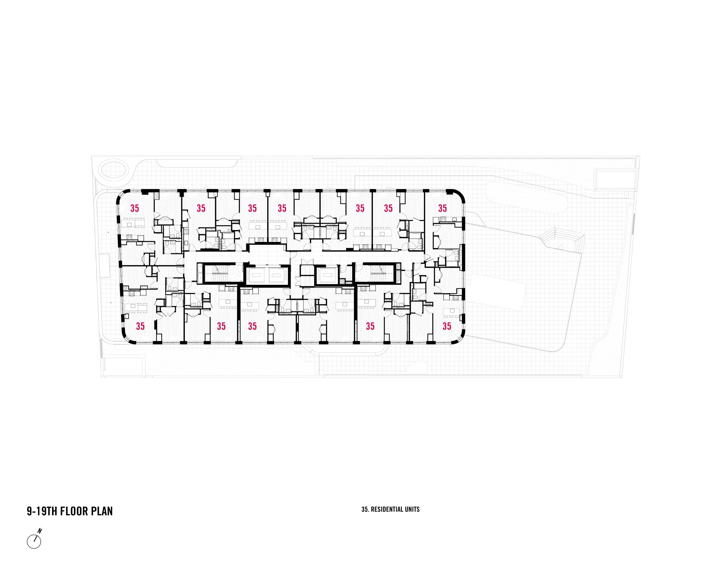
Residential, Retail, Geothermal

LOCATION

SIZE

YEARS

CLIENT

STATUS

PROGRAM

Return to Projects

Drawings

Renderings