





























1515 SURF AVENUE
What is the typical modern apartment building? One thinks of a decorated lobby, an elevator, and vacant hallways that usher residents to their rooms the moment they step foot into the building. In a time when social interaction is cherished, residents are separated and stacked upon one another like a filing cabinet. Overlooking the iconic boardwalk of Coney Island, 1515 Surf Avenue addresses the problem of the modern residential building, by replacing the liminal with the dynamic.
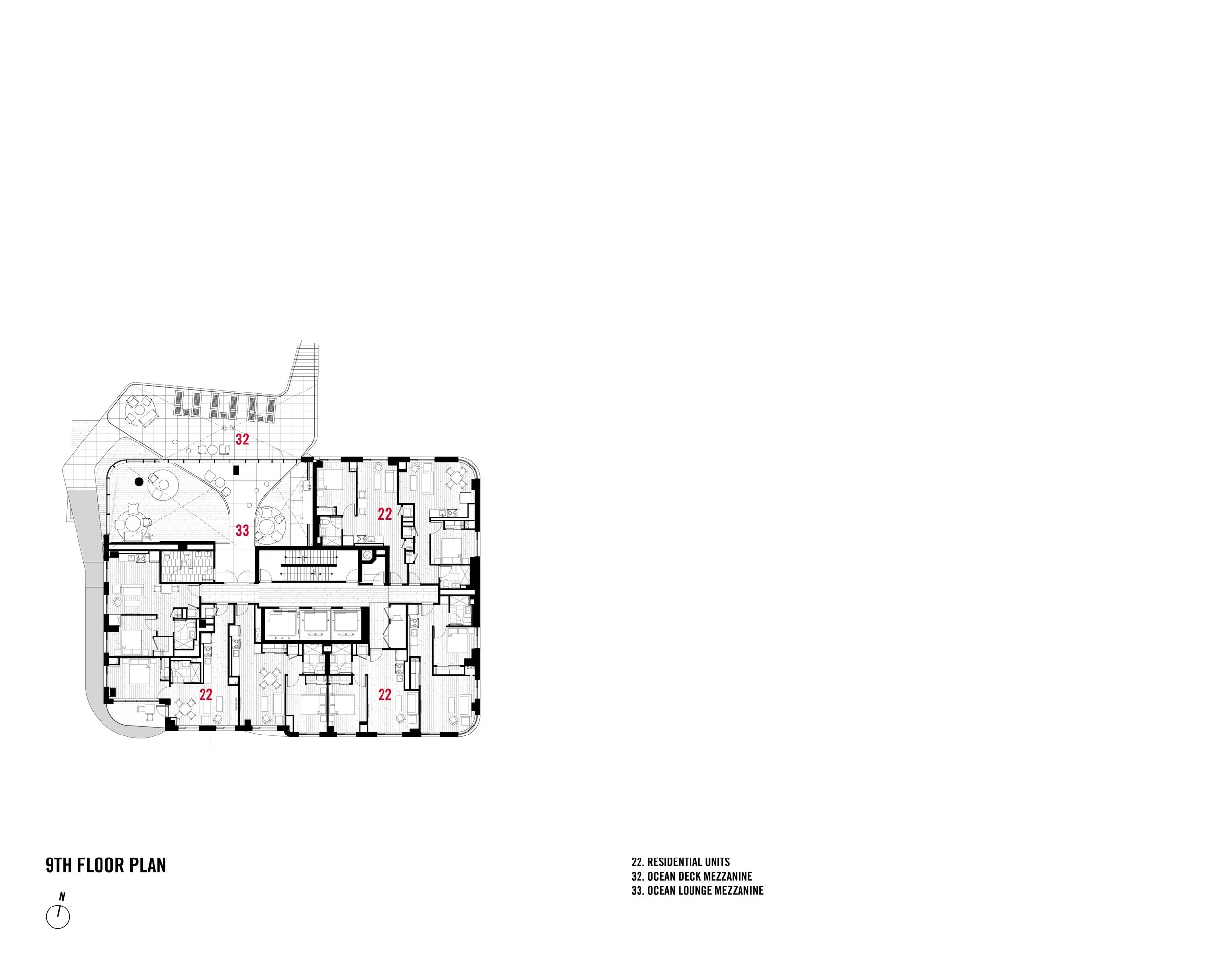
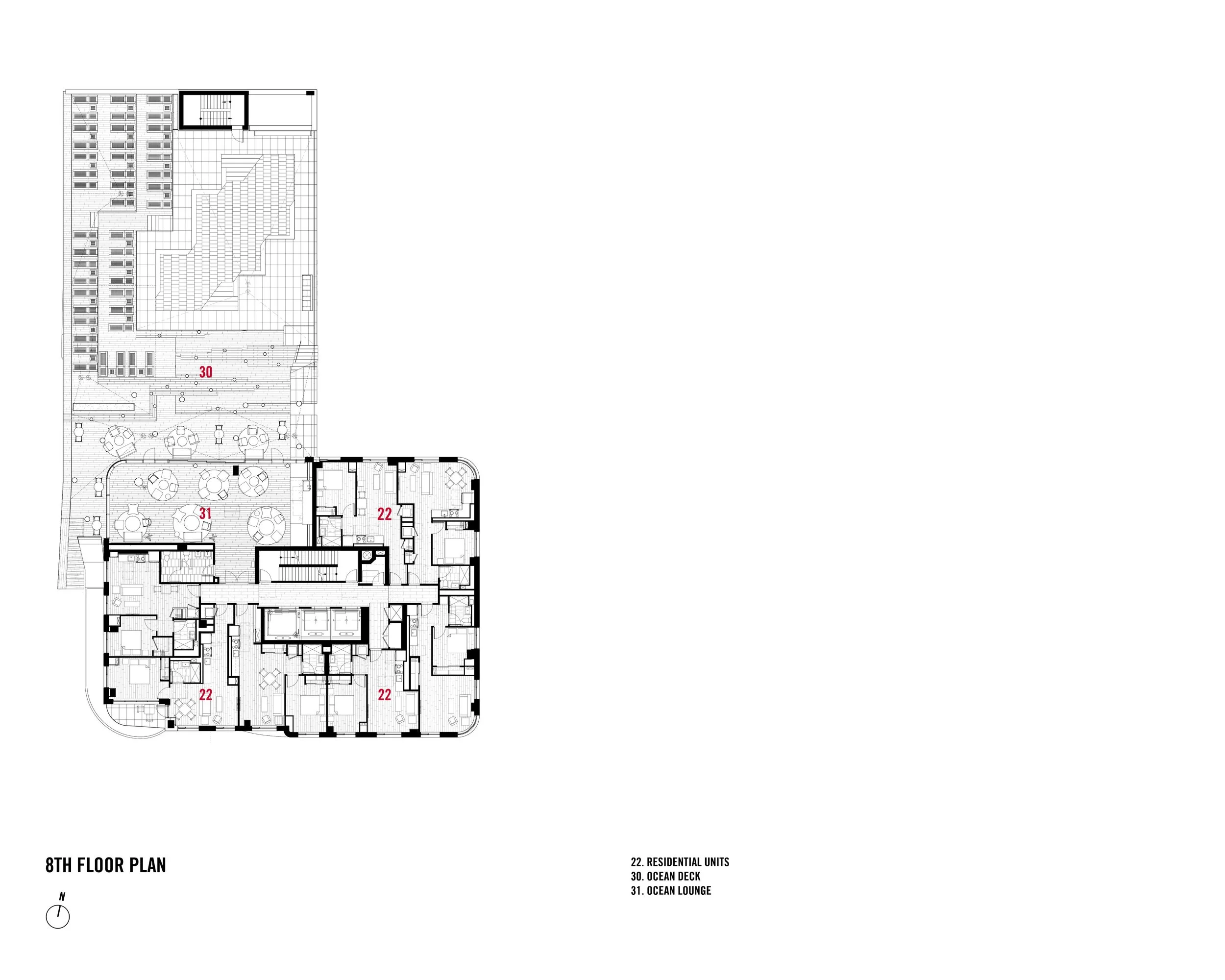
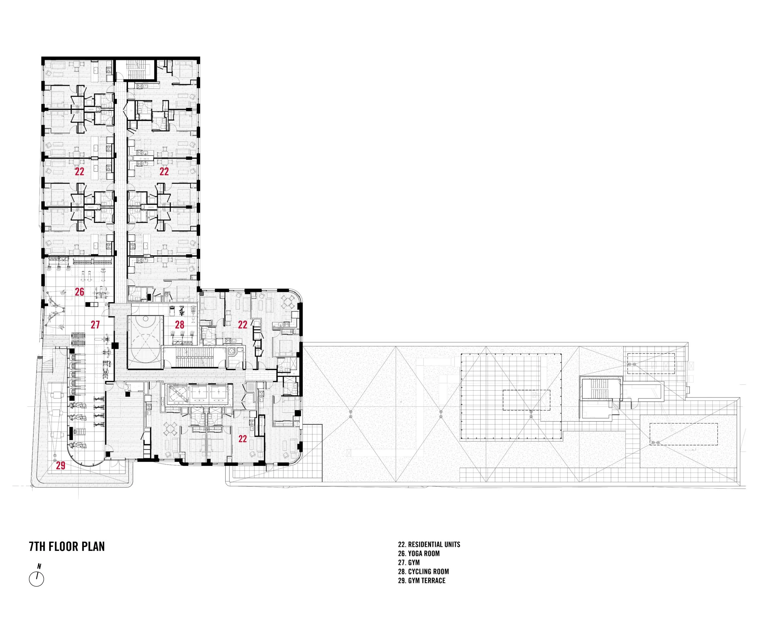
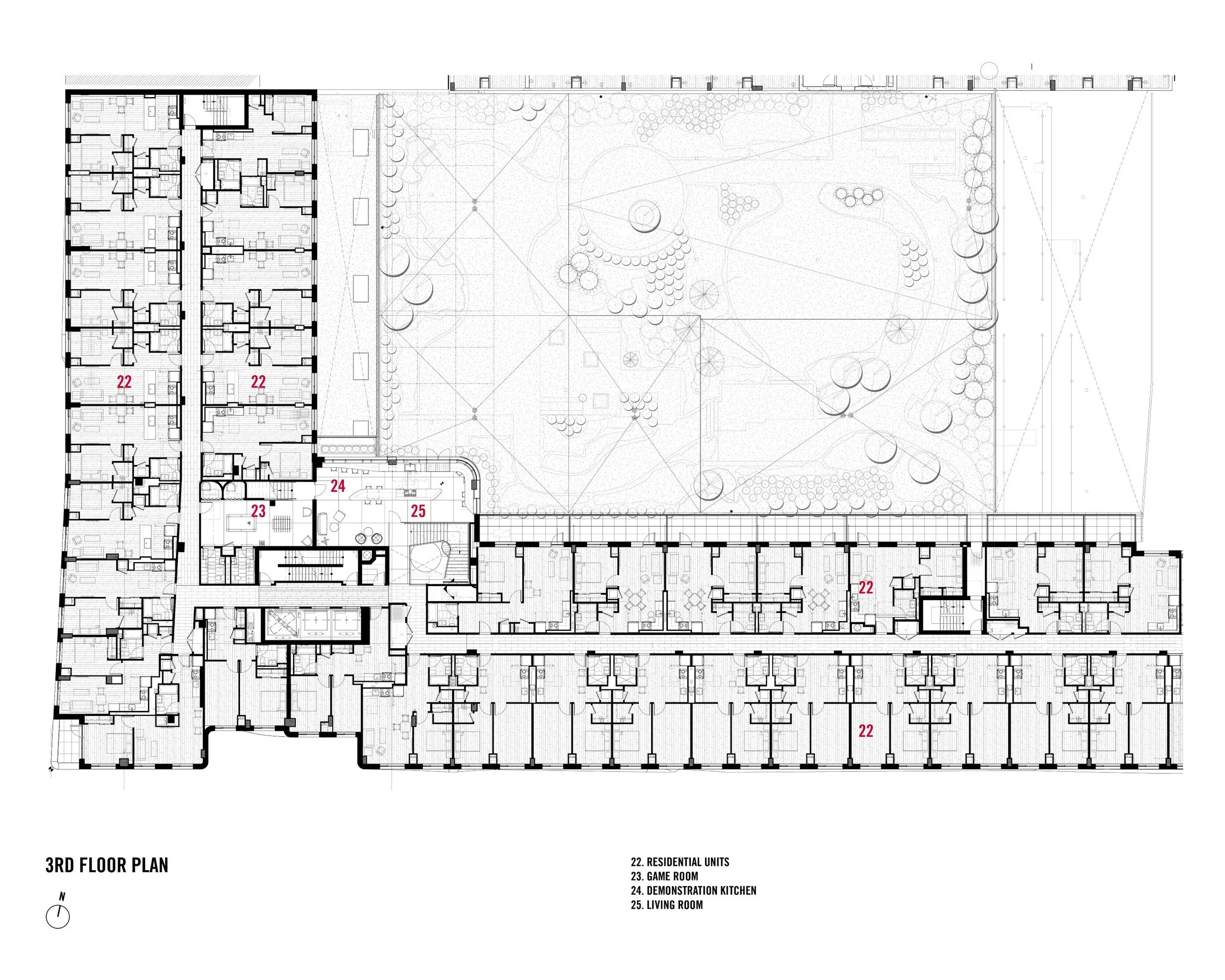
Designed to connect spaces instead of isolating them, Surf Avenue takes the history and character of the greatest public space in Coney Island - the boardwalk - and bends it through the entire building. Through this vertical boardwalk, we implemented an overlapping sequence of spaces that stacks amenities, gardens, and leisure activities on top of one another with wooden walkways weaving between them. From a library overlooking a basketball court to terraces gazing out at gardens and pool decks, the site evokes the same spatial fluidity and play as the iconic Coney Island beach it faces. While the modern apartment building centers around isolation, at 1515 Surf Avenue we have created the opposite: a site which connects a community through lively and unexpected opportunities for interaction.
Brooklyn, NY
470,000 SF
2019 - 2024
LCOR
Complete
High-Rise Residential, Geothermal, Resiliency
LOCATION
SIZE
YEARS
CLIENT
STATUS
PROGRAM